Historic Quaker Houses of Philadelphia

The Grumblethorpe Tenant House
5269 Germantown Ave, Germantown
Built ca.1744, with Additions:

In the late 1700s this was the home of Daniel Wister (1738 - 1805) and wife Lowry Jones (1742 - 1804). Daniel’s family, the Wisters, was one of the most prominent German-speaking Quaker families in Philadelphia. His father, John Wister, built their family home, Grumblethorpe, next door.
When Daniel Wister married Lowry Jones, he married into a wealthy Quaker family whose family’s first language had been Welsh. This intercultural union of the Wisters (Germanic) with the Joneses (Welsh) is a marital metaphor for the cross-cultural ancestry of Pennsylvania’s historic Quaker houses.
These houses have both Germanic and Anglo origins. Pennsylvania’s historic Quaker houses are symbols of William Penn’s welcoming “Holy Experiment”, which hybridized Old World architectural traditions to create new American vernacular.

 John Wister (Johannes Wüster)
Patriarch of the Pennsylvania German Wister Family:

Above: Grumblethorpe “Wister’s Big House” on the right. The Wister Tenant House is on the left. Image source: Lee J. Stoltzfus
Johannes Wüster / John Wister immigrated to Philadelphia in 1727, from Hilsbach, near Heidelberg, Germany. When he was naturalized in 1740, the records listed him as a Quaker, although he had been baptized German Reformed. Wister established a lucrative career as a merchant and real estate investor.
John Wister built Grumblethorpe as his summer residence in 1744. The family’s primary residence was at 325 Market Street, Philadelphia. Wister Quaker descendants lived here at Grumblethorpe for generations.

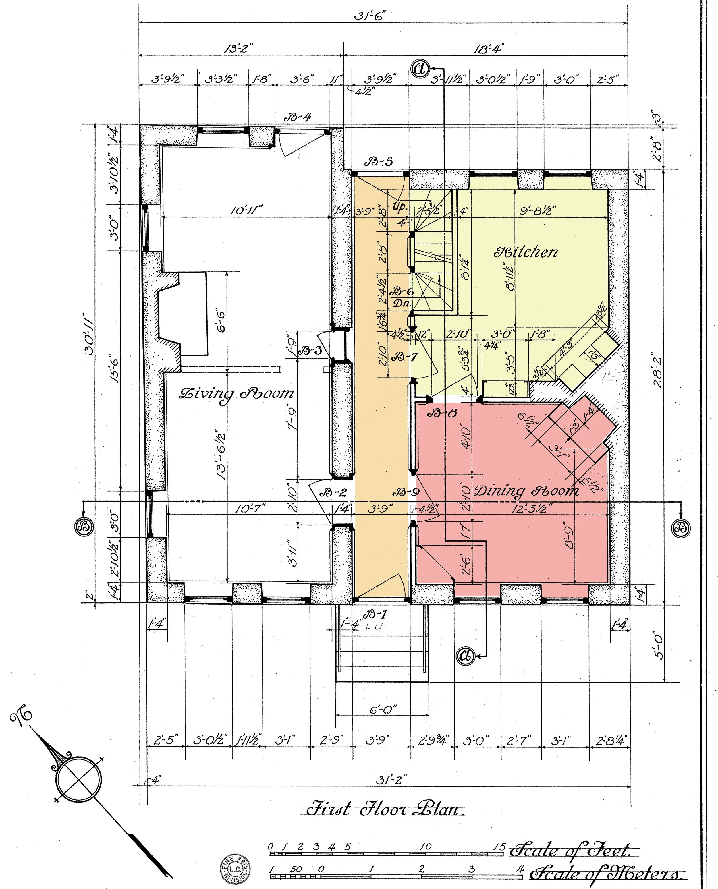
 1934 Floorplan of the Tenant House
Historic American Building Survey:

 Above: Image source: Historic American Buildings Survey, Library of Congress (color added)
In 1934 Architect Walter H. Poole drew this first-floor plan of the Wister Tenant House. This house was originally a one-story house with a side-hall plan (the colored section). Historians also define this house form as a two-thirds Georgian plan. Early in the 1800s the Wisters added a second story and an addition to the northwest (uncolored left section).

 Henry Glassie’s Two-Thirds Georgian Plan:

  Historian Henry Glassie defined a side-hall house type as two-thirds Georgian in his article “Eighteenth-Century Cultural Process in Delaware Valley Folk Building”, 1972, Jstor. Early in the 1800s the Wisters added more rooms to this house to create an enlarged, full-Georgian plan with a central hall.
The original plan of the ca. 1754 Williams-Garrett House in Chester County is an example of a local one-third Georgian house.

Interior Details of the Tenant House
Historic American Buildings Survey:

  Above: In 1934 Architect Wesley R. Fisher created this measured drawing of The Wister Tenant House for the Historic American Buildings Survey. Image source: Historic American Buildings Survey, Library of Congress

 The Tenant House in 1955:

Above: This 1955 photograph shows the Wister Tenant House next door to “Wister’s Big House” / (Grumblethorpe.) The Big House had shutters that were typical of Federal-era shutters: white paneled shutters on the first floor, with dark green or black louvered shutters on the second floor. Image source: Historic Germantown: From the Founding…, Harry and Margaret Tinkcom, 1955, Internet Archive.

 Links: